–––
Nikoletta Georgopoulou, Aikaterina Ritsoni
Cyprus is located at Eastern Mediterranean Sea and is the third bigger island of the Mediterranean. The origin of its name is the Greek word Kypris (gr: Κύπρις) that is the last name of the ancient goddess Aphrodite and it is found in the Homer’s Odyssey and Iliad. The history of the island starts from the prehistoric period. There is a strong succession of sovereignty for its strategic position, most notably the Frankish empire, during which important ports have been developed. As a result, Cyprus has a great cultural heritage. In 1974 Turkey invaded in the northern part of the island. Since then, geopolitically Cyprus is quadruple: the Republic of Cyprus occupies the 56% of the ground, the Turkish Republic of the Northern Cyprus occupies the 34,85%, the United Nations covers 2,67% with the buffer zone and the British sovereignty covers the 2,74%. The main economic sectors of Republic of Cyprus are trade and tourism. After the invasion, Cyprus lost the biggest trade port of Famagusta causing an economic drawdown. To stabilize the situation, there was an expansion of the rest of the coastal cities with uncontrolled artificial cover of the coastline. Human activities combined with natural phenomena put pressure on the coastline and making it more vulnerable in the upcoming sea level rising.











Amphibious Rehabitation
One of the main concerns of the societies was the habitation near the sea because of its advantages. Even though the sea undermines risks, especially nowadays where the irresponsible pollution of the ecosystem causes sea level rise and threatens coastal settlements, people still have the need to live next to it. The phenomenon is more intense in the case of Cyprus because of the great amount of the marine mineral resources.
What will happen after 300 years, when the sea level starts to destroy the coastline?
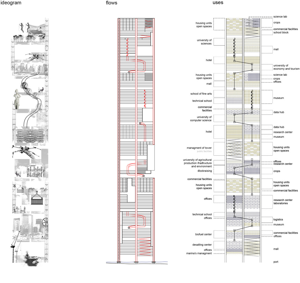
Envisioned a non specific area proposal of a new amphibious rehabitation that will be suitable to respond to the upcoming sea rise. This residential model will act as an autonomous mechanism that will provide all the necessary uses in order to become a community that will release the structured surrounding environment and bring it back to an earlier non-structured condition. The shape of the tower arising from the conditions of each site. The material that is used is technological upgrade so it can’t be corroded. Also, it has rock texture to fit harmoniously into the landscape. Access can take place through the sea, where there is a marina spot on the water level, as well as through the air with drones in various open spaces uphill. Internal flows are made vertically through a stairwell, elevators and ramps between floors and as well as through a new capsule transport system.





©COASTAL DOMAINS 2016-2017